Opis nekretnine
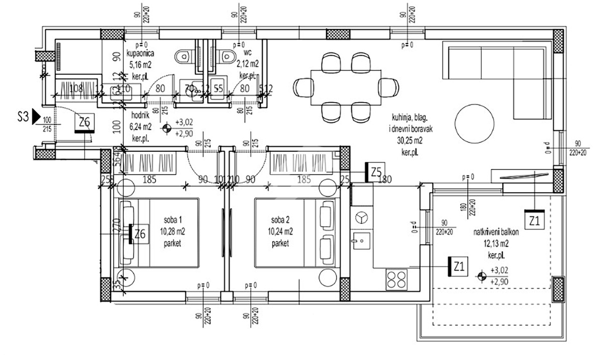
Stan S3 nalazi se na prvom katu, na jugoistočnom dijelu moderne zgrade u mirnim i traženim Petrčanima, u blizini Zadra. Riječ je o dvosobnom stanu s prostranim dnevnim boravkom, idealnom za udoban i suvremen mediteranski život.
Stan se sastoji od:
- kuhinje, blagovaonice i dnevnog boravka | 30,25 m²
- spavaće sobe 1 | 10,28 m²
- spavaće sobe 2 | 10,24 m²
- kupaonice | 5,16 m²
- odvojenog wc-a | 2,12 m²
- hodnika | 6,24 m²
Ukupna veličina stana iznosi 64,29 m².
Nekretnina ima sljedeće dodatne dijelove i pripadke:
- natkriveni balkon | 12,13 m²
- natkriveno parkirališno mjesto | 13,75 m²
- nenatkriveno parkirališno mjesto | 13,75 m²
Ukupna površina stana S3 s pripadcima iznosi 103,92 m², a ukupna korisna vrijednost površine iznosi 79,99 m².
Prostrani dnevni open space prostor, povezan s kuhinjom i blagovaonicom, čini moderan i iznimno svijetao centar stana. Velika staklena stijena otvara se prema natkrivenom balkonu, donoseći obilje prirodnog svjetla i stvarajući savršen prijelaz između interijera i eksterijera.
Dvije udobne spavaće sobe nude dovoljno prostora za bračne krevete, a maksimalnu funkcionalnost postići ćete ugradbenim ormarima po mjeri. Kupaonica je opremljena tušem, a dodatnu praktičnost osigurava odvojeni toalet, što je iznimno korisno za svakodnevni život i komfor.
Natkriveni balkon idealan je prostor za jutarnju kavu, obiteljske obroke ili večernje opuštanje — zaštićen od sunca i vremenskih uvjeta, pruža privatnost i pravi mediteranski ugođaj.
Investitor će u stan ugraditi kuhinju te potpuno uređenu kupaonicu, a prema želji kupca moguće je dogovoriti i kompletno uređenje cijelog stana. U slučaju kupnje radi investicije, investitor nudi i uslugu vođenja najma, što ovu nekretninu čini odličnom prilikom i za turistički prinos.
Svi stanovi u zgradi bit će završeni parketima i keramikom prve klase, čime se dodatno naglašava kvaliteta, elegancija i dugotrajnost.
ID
S00324
Kategorija
Stanovi
Grad
Zadar - Okolica
Cijena
416.000,00 €
Detalji
Površina (m²)
64,29
Tip stana
2S+DB
Tip objekta
Zgrada
Ulaz u stan
Zajedniči ulaz
Broj soba
3
Broj spavaćih soba
2
Broj kupaonica
1
Broj WC-a
1
Pogled
Okolina
Orijentacija
Jugoistok
Ukupan broj katova
2
Balkon /Lođa
Balkon
Vanjsko parkirno mjesto
Da
Broj vanjskh parkirnih mjesta
2
Godina izgradnje
2026
Dozvole
Građevinska dozvola
Da
Vlasnički list
Da
Tehnički detalji
Grijanje
Klima, Podno grijanje
Stolarija
PVC, Aluminij
Parket
Odlično
Pločice
Odlično
Blizina sadržaja
Škola, Vrtić, Benzinska postaja, Pošta, Banka, Park, Fitness centar, Trgovina, Igralište, Javni prijevoz, Blizina mora, Blizina centra, Sportski centar
Pogodnosti
Balkon, Blizina Autobusa, Dokument o vlasništvu
Zgrada
Odlično
Stube
Odlično
Oprema nekretnine
Voda, Struja, Gradski vodovod, Gradska kanalizacija, Portafon, Video nadzor, Električni podizači roleta
Udaljenost od mora (m)
30
Udaljenost od centra (m)
800
Zakažite obilazak
Kontakti
Moglo bi Vas zanimati
Otkrijte nekretnina s fokusom na kvalitetu i vrijednost, nudimo neke od najboljih nekretnina na tržištu.
Petrčane - Stan S1 – Luksuzni prizemni stan s privatnim bazenom i velikim vrtom
525.200,00 €
Petrčane S4 - Ekskluzivni penthouse s četiri spavaće sobe i krovnom terasom
1.085.000,00 €
Petrčani - Stan S2 - Svijetao , open space , velika krovna terasa i vrhunska kvaliteta
416.000,00 €