Opis nekretnine
Penthouse S4 zauzima cijeli drugi kat moderne zgrade u atraktivnim i mirnim Petrčanima, nedaleko od Zadra. Riječ je o iznimno prostranom, ekskluzivnom stanu koji spaja luksuz, udobnost i funkcionalnost — savršen za veće obitelji, ali i kao prestižna investicija.
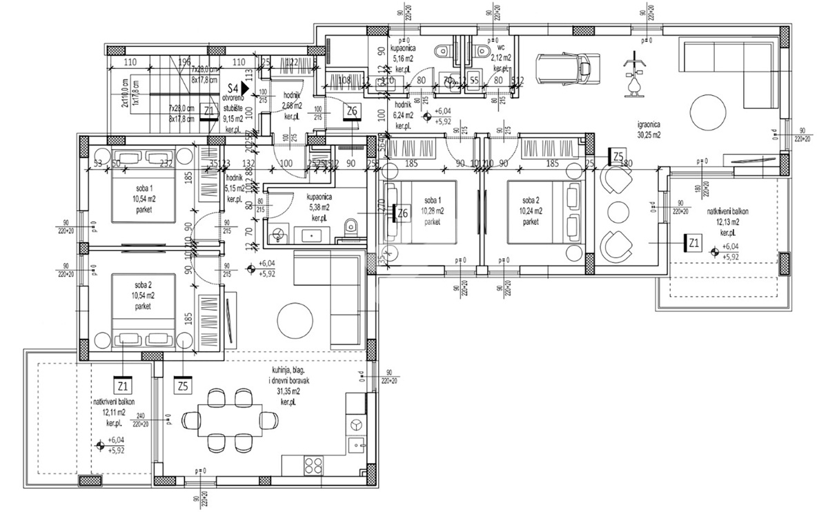
Stan se sastoji od:
- kuhinje, blagovaonice i dnevnog boravka | 31,35 m²
- igraonice ili dodatnog dnevnog open space prostora | 30,25 m²
- spavaće sobe 1 | 10,54 m²
- spavaće sobe 2 | 10,54 m²
- spavaće sobe 3 | 10,28 m²
- spavaće sobe 4 | 10,24 m²
- kupaonice 1 | 5,38 m²
- kupaonice 2 | 5,16 m²
- odvojenog wc-a | 2,12 m²
- hodnika 1 | 6,24 m²
- hodnika 2 | 2,68 m²
- hodnika 3 | 5,15 m²
Ukupna površina stana iznosi 129,93 m².
Nekretnina ima sljedeće dodatne dijelove i pripadke:
- natkriveni balkon 1 | 12,11 m²
- natkriveni balkon 2 | 12,13 m²
- natkriveno parkirališno mjesto | 13,75 m²
- nenatkriveno parkirališno mjesto | 13,75 m²
- krovna terasa | 79,45 m²
Ukupna površina penthousea S4 s pripadcima iznosi 261,12 m², a ukupna korisna vrijednost površine iznosi 171,55 m².
Ovaj ekskluzivni penthouse pruža vrhunski komfor, obilje prirodnog svjetla i iznimno funkcionalan raspored. Prostrani dnevni boravak s kuhinjom i blagovaonicom stvara središnji obiteljski prostor, dok drugi open-space dio — zamišljen kao igraonica, dodatni lounge ili drugi dnevni boravak — pruža maksimalnu fleksibilnost i mogućnost prilagodbe različitim životnim stilovima.
Četiri spavaće sobe ravnomjerno su raspoređene u dva krila stana. Vizualizacija predviđa roditeljsko krilo s dvije sobe, od kojih se jedna idealno može urediti kao kućni ured, te dječje krilo s preostale dvije spavaće sobe. Dvije elegantne kupaonice i dodatni odvojeni toalet dodatno podižu razinu komfora.
Stan ima dva natkrivena balkona, koji omogućuju opuštanje tijekom cijelog dana, te impresivnu krovnu terasu od 79,45 m² — savršeno mjesto za sunčanje, druženja, roštilj, jacuzzi ili privatni rooftop lounge.
Posebna pogodnost je mogućnost da se tijekom izgradnje ovaj veliki penthouse pregradi u dva zasebna stana, što dodatno povećava njegov investicijski potencijal.
Investitor će u stan ugraditi kuhinju te potpuno uređene kupaonice, a prema želji kupca može se urediti i cijeli stan. Kupcima koji traže nekretninu za ulaganje, investitor nudi uslugu profesionalnog vođenja najma, čime se osigurava maksimalna popunjenost i povrat.
Svi stanovi u zgradi, uključujući penthouse S4, bit će završeni parketima i keramikom prve klase, što jamči visoku razinu estetike i dugotrajnu kvalitetu.
ID
S00329
Kategorija
Stanovi
Grad
Zadar - Okolica
Cijena
1.085.000,00 €
Detalji
Površina (m²)
129,93
Tip stana
4S+DB
Tip objekta
Zgrada
Ulaz u stan
Zajedniči ulaz
Broj soba
5
Broj spavaćih soba
4
Broj kupaonica
2
Broj WC-a
1
Pogled
Pogled na more
Ukupan broj katova
2
Terasa
Da
Balkon /Lođa
Balkon
Vanjsko parkirno mjesto
Da
Broj vanjskh parkirnih mjesta
2
Lift
Da
Godina izgradnje
2026
Dozvole
Građevinska dozvola
Da
Vlasnički list
Da
Tehnički detalji
Grijanje
Klima, Podno grijanje
Stolarija
PVC, Aluminij
Parket
Odlično
Pločice
Odlično
Blizina sadržaja
Škola, Vrtić, Benzinska postaja, Pošta, Banka, Park, Fitness centar, Trgovina, Igralište, Blizina mora, Blizina centra, Sportski centar
Pogodnosti
Balkon, Blizina Autobusa, Dizalo, Dokument o vlasništvu, Prilagođeno invalidima, Terasa
Zgrada
Odlično
Stube
Odlično
Oprema nekretnine
Voda, Struja, Gradski vodovod, Gradska kanalizacija, Portafon, Video nadzor, Električni podizači roleta
Udaljenost od mora (m)
30
Udaljenost od centra (m)
800
Zakažite obilazak
Kontakti
Moglo bi Vas zanimati
Otkrijte nekretnina s fokusom na kvalitetu i vrijednost, nudimo neke od najboljih nekretnina na tržištu.
Petrčani - Stan S2 - Svijetao , open space , velika krovna terasa i vrhunska kvaliteta
416.000,00 €
Petrčane - Stan S1 – Luksuzni prizemni stan s privatnim bazenom i velikim vrtom
525.200,00 €
Petrčane - Stan S3 - Suvremeni stan s odličnim rasporedom i kvalitetom prve klase
416.000,00 €