Opis nekretnine
Na prodaju je stan u novogradnji u mirnom dijelu grada Labina, smješten u manjoj modernoj stambenoj zgradi koja se sastoji od prizemlja i dva kata, s ukupno 8 stanova. Zgrada se nalazi u ugodnom i tihom okruženju, idealnom za obiteljski život ili odmor, a istovremeno je dovoljno blizu centra grada i svih potrebnih sadržaja poput trgovina, škole, restorana i ostalih usluga.
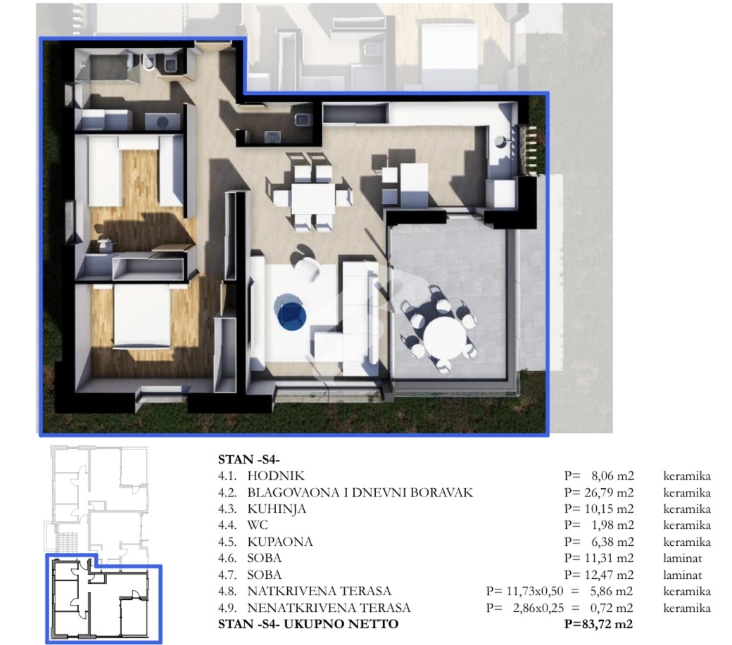
Stan S4-2 površine 83,72 m² smješten je na prvom katu te se sastoji od ulaznog prostora, dvije spavaće sobe, kupaonice te dodatnog WC-a. Središnji dio stana čini moderan otvoreni prostor koji povezuje kuhinju, blagovaonicu i dnevni boravak. Iz dnevnog boravka i kuhinje izlazi se na terasu, dok velike panoramske staklene stijene omogućuju obilje prirodnog svjetla i stvaraju ugodnu i toplu atmosferu u prostoru.
Parkirna mjesta osigurana su uz zgradu te se kupuju zasebno po cijeni od 5.000 €.
Planirani završetak gradnje je 2027. godina.
Ova nekretnina predstavlja odličnu priliku za ugodan život u mirnom okruženju, ali i kao investicija za turistički najam zahvaljujući atraktivnoj lokaciji u Istri.
ID
S00445
Kategorija
Stanovi
Grad
Labin
Cijena
309.764,00 €
Detalji
Površina (m²)
83,72
Tip stana
2S+DB
Tip objekta
Zgrada
Ulaz u stan
Zajedniči ulaz
Broj soba
3
Broj spavaćih soba
2
Broj kupaonica
1
Broj WC-a
1
Pogled
Okolina
Ukupan broj katova
2
Terasa
Da
Veličina terase (m²)
6,58
Dvorište/Vrt
Nema
Vanjsko parkirno mjesto
Da
Godina izgradnje
2027
Dozvole
Tehnički detalji
Grijanje
Klima
Stolarija
Odlično, PVC
Parket
Odlično, Laminat
Pločice
Odlično
Blizina sadržaja
Škola, Vrtić, Benzinska postaja, Pošta, Banka, Park, Kino, Fitness centar, Trgovina, Bazen, Igralište, Javni prijevoz, Blizina mora, Blizina centra, Sportski centar
Pogodnosti
Terasa
Zgrada
Odlično
Stube
Odlično
Oprema nekretnine
Voda, Struja, Gradski vodovod, Gradska kanalizacija, Portafon, Ne namješteno
Zakažite obilazak
Kontakti
Moglo bi Vas zanimati
Otkrijte nekretnina s fokusom na kvalitetu i vrijednost, nudimo neke od najboljih nekretnina na tržištu.
Pula, Valdebek - Zgrada 6 ekskluzivni penthouse
347.000,00 €
Poreč – stan C302, trosobni stan s dnevnim boravkom, 147,27 m², treći kat
694.378,00 €
Poreč – stan C102, trosobni stan s dnevnim boravkom, 94,76 m², prvi kat
446.793,00 €